| Главная / Новосибирская область | |||
![]()  | 
    База предложений загородной недвижимости | ||
| 
	 | 
  |||
| 
	 Рекомендуем 
		 | 
    
	
	
    
Исключительный случай: дом рядом с городом по низкой цене для большой семьи!Дата публикации: 11 Июля 2010 18:35 
Стоимость
	1 799 000 руб.
	или 0 $ по курсу 0.00 руб.
	или 0 € по курсу 0.00 руб.
 
Фотографии объекта 
			 
			 
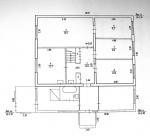
	Подробности объявленияВ связи с переездом в другой город, срочно продается уютный теплый дом  по заниженной цене с участком (7 соток) ! До границы города 200 метров! В доме прохладно летом и тепло зимой. Добраться до города – не проблема: дом расположен в двух шагах от электрички, 17 мин. езды до центра города. Также рядом автобусы и маршрутки. 
	Великолепный внешний вид: дом обшит сайдингом. Широкие пластиковые окна заливают дом естественным светом. В доме есть все для вашего комфорта: горячая и холодная вода (гор.вода от электрокотла 100л.), туалет, ванная. Канализация – слив. В доме имеется два бетонированных огромных погреба, вам будет где сделать запасы в любых количествах! Дом исключительно теплый: печное водяное отопление с насосом в контуре быстро согревает дом, а толстые деревянные стены долго держат тепло. Вам и вашим гостям будет удобно и уютно расположиться в кухне размером 12 кв.метров. В пяти комнатах с легкостью разместится большая семья.(Три комнаты по 10кв.м., зал 20м.кв., веранда 15 кв. м. и прихожая! Но если этого Вам мало?! Тогда у вас есть огромный ВТОРОЙ этаж, целых 55 метра!!! Там есть где разгуляться настоящим работящим рукам! Отделка этажа не закончена и вы сможете реализовать там любые фантазии: хоть биллиардную сделайте, хоть 2-3 уютные комнаты. У вас есть машина? Тогда ставьте ее в металлический гараж рядом с домом! Внутренний двор отлично подойдет для игр детей и отдыха. Нужен огород – пожалуйста. Сделайте подарок себе и вашей семье - купите этот дом прямо сейчас! Документы готовы. От хозяина. Дом стоит значительно дороже, но увы, мы вынуждены так снизить цену - необходимо продать срочно. Отметим, что эксперты прогнозируют ежегодное увеличение стоимости недвижимости в этом районе. Эта покупка является гарантированно успешной инвестицией. Ваши поиски закончены – это самое большее за эту сумму!!! Детям нужен большой дом! Торг в разумных пределах! 
 
		Внимание!!! Дата публикации составляет больше 90 дней. Объявление может быть уже
		не актуальным.
			 
		
	
	
	
 | 
    
	 
		Лучшие предложения
	 
	
	
	
	Это интересно 
	
	
	 | 
  
![]()  | 
    unRealty.ru - Дачи, коттеджи, земельные участки с фотографиями |   | 
    ![]()  |